Uređenje parkirališta u Krležinoj ulici
Foto: Grad Pula
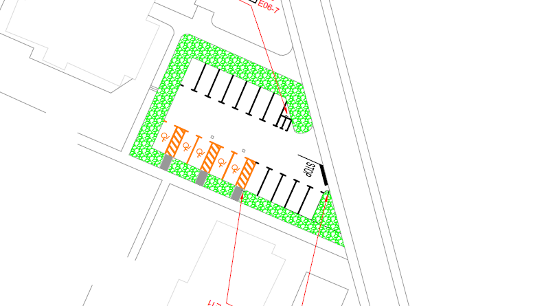
Započeli radovi na uređenju parkirališta u Krležinoj ulici, između kućnih brojeva 35 i 37, koje provodi Grad Pula – Pola. Radovi su planirani kroz Program održavanja komunalne infrastrukture za 2025. godinu, u sklopu projekta Participativnog budžetiranja.
Cilj zahvata je osigurati 5 parkirnih mjesta za osobe s invaliditetom te povezati parkiralište s postojećom pješačkom stazom, u skladu s Pravilnikom o osiguranju pristupačnosti građevina osobama s invaliditetom i smanjene pokretljivosti.
Nakon sanacije dotrajalog asfaltnog zastora, uspostavit će se nova prometna organizacija koja uključuje obilježavanje: 12 parkirnih mjesta za osobne automobile, 5 mjesta za vozila osoba s invaliditetom, 2 parkirna mjesta za motocikle i mopede.
Radove izvodi tvrtka Cesta d.o.o. Pula, temeljem godišnjeg ugovora o održavanju nerazvrstanih cesta i javnih površina na području Grada Pule – Pole.
Završetak radova očekuje se u prvoj polovini lipnja.
Pozivamo sve sudionike u prometu na strpljenje tijekom izvođenja radova te molimo pridržavanje privremene prometne signalizacije.
(PS)

